Boardwalk A-34

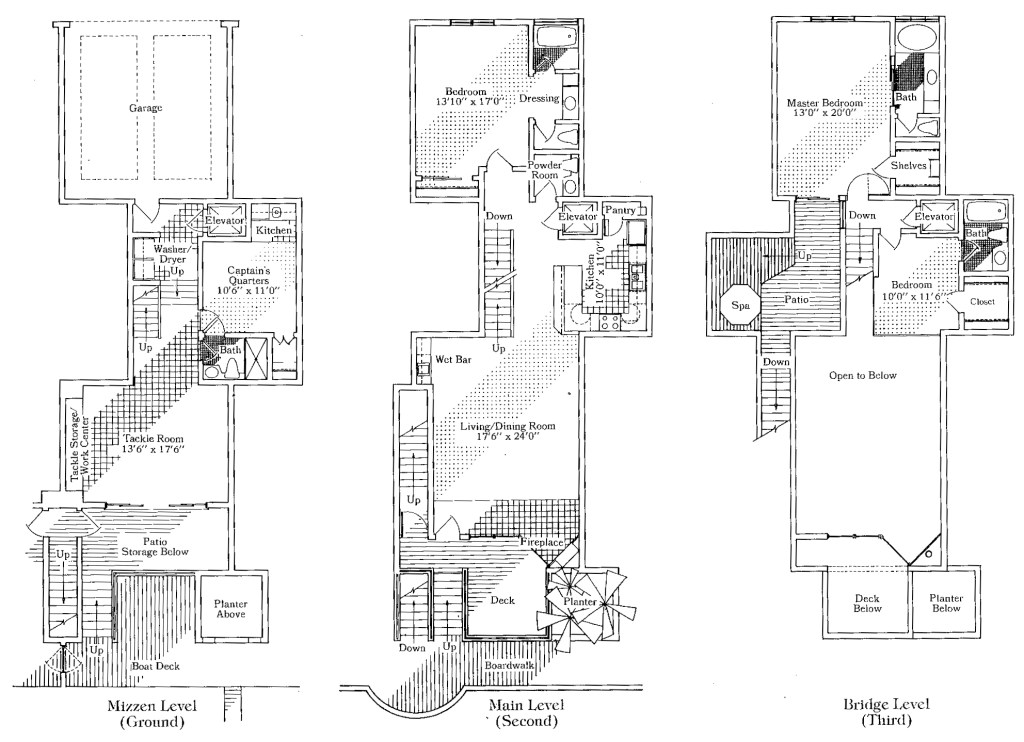
Luxury bay front condominium with the only private deep water marina on South Padre Island, providing instant access to your boat and the only private fuel dock on the water. 3 bedrooms 3.5 baths, includes a living room, dining great room, captains quarters, three outdoor patios, ample storage, private elevator, two car garage & 24 hour gated security. Perfectly situated on the South end of complex to enable you to enjoy the spectacular sunsets on the bay.

List Price: $597,500.00

Listing Agent: Glenda George, (281) 779-0572

Boardwalk 34 3D Virtual Tour